Scheda immobile:

Ristorante - Vendita 267 mq.

Varese

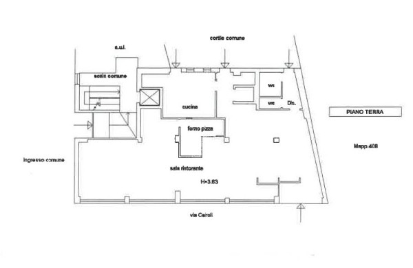
VARESE – VENDESI ATTIVITÀ DI PIZZERIA CON CUCINA RISTRUTTURA A due passi dalla zona pedonale! Proponiamo in vendita avviata attività commerciale di ristorazione in una delle zone più tranquille e ben collegate di Varese, precisamente a Biumo inferiore in Via Ernesto Cairoli 20. Il locale è stato recentemente ristrutturato con cura e attenzione ai dettagli, e viene ceduto completo di arredamento e attrezzature professionali, pronto per essere rilevato e gestito senza ulteriori investimenti. Caratteristiche principali: - Nuovo contratto di locazione 6+6 a € 2.000,00 mensili. - 200 mq al piano terra dedicati alla somministrazione, con ampi spazi accoglienti per la clientela. - 150 mq circa al piano -1 adibiti a deposito/magazzino, con spogliatoi e bagni per il personale, servito da montacarichi interno. - Possibilità di allestire tavoli all’esterno in una gradevole area verde adiacente al locale, ideale per la bella stagione. - Posizione comoda e facilmente raggiungibile, in una zona con buona visibilità e potenziale di crescita. - Attività pronta all’uso, con ristrutturazione recente già effettuata e locali perfettamente funzionanti. Un’opportunità ideale per professionisti del settore o per chi cerca un’attività ben strutturata, in una posizione di grande valore.


mq. 267
Riscaldamento: centralizzato

180.000,00€


Non divulgheremo il tuo indirizzo a nessun altro.
Autorizzo al trattamento dei dati per la richiesta in oggetto. Consenso esplicito secondo il D.Lgs 196/2003. privacy policy