Scheda immobile:

Attico - Vendita 169 mq.

Induno Olona

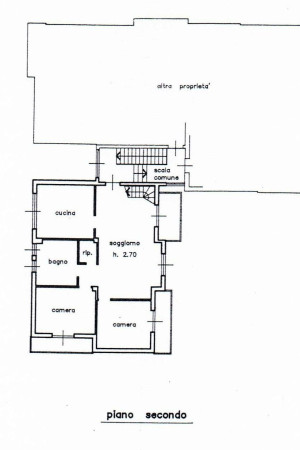
In una posizione strategica e comoda a tutti i servizi, a Induno Olona, in via Andreoli 2, proponiamo in vendita un raffinato appartamento duplex disposto su secondo e terzo piano (senza ascensore), a pochi minuti a piedi da Esselunga e dalla Stazione di Induno Olona. L’ingresso si apre su un luminoso soggiorno con balcone, affiancato da una cucina abitabile con splendida vista su ''Villa Pirelli''. La zona notte del secondo piano ospita due camere entrambe con balcone, un elegante bagno con vasca idromassaggio e box doccia, oltre a un pratico ripostiglio/lavanderia. Una splendida scala scenografica in cristallo conduce al piano superiore, dove troviamo un locale hobby, un secondo bagno con box doccia e una spettacolare suite padronale con cabina armadio e terrazzo panoramico privato, perfetto per momenti di relax all’aperto. L’immobile è impreziosito da parquet in tutti gli ambienti, serramenti in doppio vetro/alluminio, porta blindata, impianto di allarme e predisposizione aria condizionata. Completa la proprietà un box doppio. Una casa di carattere, luminosa e ricca di comfort, ideale per chi cerca spazi importanti senza rinunciare alla comodità dei collegamenti.


mq. 169
Camere da letto: 3
Bagni: 2
Box auto: 2
Riscaldamento: autonomo
Classe energetica: G

370.000,00€


Non divulgheremo il tuo indirizzo a nessun altro.
Autorizzo al trattamento dei dati per la richiesta in oggetto. Consenso esplicito secondo il D.Lgs 196/2003. privacy policy